EN
partnerteknik@partnerteknik.com
+90 216 361 42 05 (Pbx)
Yenişehir Mah. Özgür Sok. No:17 Partner Plaza 34779 Ataşehir / İstanbul
LOGIN
KURUMSAL
Başkanın Mesajı
Tarihçe
Şirket Profili
Vizyon
Misyon
Değerlerimiz
Sosyal Sorumluluk
Kalite Politikamız
Sertifikalarımız
Çevre Politikamız
Makine Parkı
KVKK
Ticaret Sicili
Tanıtım filmimiz
GRUP ŞİRKETLERİ
PARTNER TEKNİK Genel Müteahhitlik İnşaat Sanayi ve Ticaret A.Ş.
Partners Madencilik
NOVA GLOBAL ENDÜSTRİ TİCARET YATIRIMLARI VE İŞLETME LTD.ŞTİ.
FAALİYET ALANLARI
Çimento
Demir Çelik
Alüminyum
Enerji
Su arıtma
Alçı
Gaz Beton
Soda
Diğer
PROJELER
Devam Eden Projeler
Tamamlanan Projeler
İŞ ORTAKLARI
KARİYER
Genel Başvuru
Açık Pozisyonlar
HABERLER
Bizden Haberler
Basında Biz
İLETİŞİM
Türkiye
Libya
Suudi Arabistan
Irak
Cameroon
TAMAMLANANLAR
Çimento
Demir Çelik
Alüminyum
Enerji
Su arıtma
Alçı
Gaz Beton
Soda
Diğer
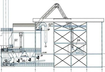
KSA, Rabigh - Çimento değirmeni ESP nin BF ye dönüştürülmesi (Bagfilters)
Proje Yılı
2015 - 2016
Proje Yeri
KSA - Rabigh
Proje Kapsamı
Mevcut Elektrostatik Filtrelerin, daha verimli ve temiz calisan Torbali Filtre ile degisimi projesidir. Bu projede tedarik edilen filter ekipmanlarinin montaji, tum insaat isleri, elektrik ve otomasyon isleri ve devreye alma Partner Teknik kapsamindadir.
Proje Resimleri
MERKEZ OFİS
Yenişehir Mah. Özgür Sok. No:17 Partner Plaza 34779 Ataşehir / İstanbul
partnerteknik@partnerteknik.com
T : +90 216 361 42 05 (Pbx)
F : +90 216 372 64 87
BİZİ TAKİP EDİN
Bizimle ilgili en güncel gelişmelerden haberdar olmak için Sosyal Medya da bizi takip etmeyi unutmayın.
HIZLI MENÜ
Kurumsal
Grup Şirketleri
Faaliyet Alanları
Projeler
İş Ortakları
Kariyer
Haberler
İletişim
Tüm Hakları Partner Teknik Tarafından Saklıdır. © 2020
EN
KURUMSAL
Başkanın Mesajı
Tarihçe
Şirket Profili
Vizyon
Misyon
Değerlerimiz
Sosyal Sorumluluk
Kalite Politikamız
Sertifikalarımız
Çevre Politikamız
Makine Parkı
KVKK
Ticaret Sicili
Tanıtım filmimiz
GRUP ŞİRKETLERİ
PARTNER TEKNİK Genel Müteahhitlik İnşaat Sanayi ve Ticaret A.Ş.
Partners Madencilik
NOVA GLOBAL ENDÜSTRİ TİCARET YATIRIMLARI VE İŞLETME LTD.ŞTİ.
FAALİYET ALANLARI
Çimento
Demir Çelik
Alüminyum
Enerji
Su arıtma
Alçı
Gaz Beton
Soda
Diğer
PROJELER
Devam Eden Projeler
Tamamlanan Projeler
İŞ ORTAKLARI
KARİYER
Genel Başvuru
Açık Pozisyonlar
HABERLER
Bizden Haberler
Basında Biz
İLETİŞİM
Türkiye
Libya
Suudi Arabistan
Irak
Cameroon
LOGIN
KSA, Rabigh - Çimento değirmeni ESP nin BF ye dönüştürülmesi (Bagfilters)
Proje Yılı
2015 - 2016
Proje Yeri
KSA - Rabigh
Proje Kapsamı
Mevcut Elektrostatik Filtrelerin, daha verimli ve temiz calisan Torbali Filtre ile degisimi projesidir. Bu projede tedarik edilen filter ekipmanlarinin montaji, tum insaat isleri, elektrik ve otomasyon isleri ve devreye alma Partner Teknik kapsamindadir.
Proje Resimleri
MERKEZ OFİS
Yenişehir Mah. Özgür Sok. No:17 Partner Plaza 34779 Ataşehir / İstanbul
partnerteknik@partnerteknik.com
T : +90 216 361 42 05 (Pbx)
F : +90 216 372 64 87
BİZİ TAKİP EDİN
Bizimle ilgili en güncel gelişmelerden haberdar olmak için Sosyal Medya da bizi takip etmeyi unutmayın.
HIZLI MENÜ
Kurumsal
Grup Şirketleri
Faaliyet Alanları
Projeler
İş Ortakları
Kariyer
Haberler
İletişim
Tüm Hakları Partner Teknik Tarafından Saklıdır. © 2020